Používame cookies na optimalizáciu našich webových stránok a našich služieb. Ďalšie informácie o cookies nájdete tu.

Nastavenie


RD Slovenská Ľupča

RD Slovenská Ľupča

NA PREDAJ

vidiecky rodinný dom po čiastočnej rekonštrukcii v Slovenskej Ľupči, 10 km od Banskej Bystrice

 

cena: 159 800,- €

Popis nehnuteľnosti

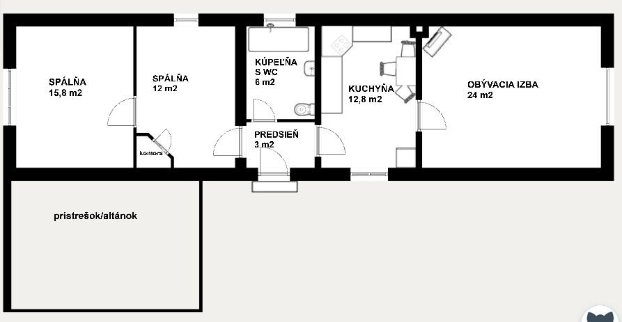
Na predaj je vidiecky rodinný dom, nachádzajúci sa v Slovenskej Ľupči, vzdialený cca 10 km od Banskej Bystrice. Pozostáva zo vstupnej predsiene, kuchyne s jedálňou, veľkej obývačky, dvoch spální, menšej komory a veľkej kúpeľne s WC. Obytná podlahová plocha je 75 m2. V chodbe, kuchyni, obývačke a v kúpeľni sú pôvodné vysoké, priznané, zdravé, trámové, 3m vysoké stropy, v spálňach, ktoré vznikli z bývalej hospodárskej časti, sú hladké stropy, vysoké 2,5 m.

Jedná sa o typický "gazdovský" dom s pomerne vysokou sedlovou strechou, pokrytou pálenou škridľou. Zastavaná plocha domu zaberá 93 m2, k domu prináleží dvor o ploche 81 m2, na ktorom sa nachádza drevený prístrešok o ploche cca 25 m2. Celková výmera pozemku je 174 m2.

Dom bol postavený v 50-tych rokoch z tradičných stavebných materiálov, ako je kvádra a tehla. K jeho modernizácii, kedy bola vybudovaná aj kanalizačná a plynová prípojka, kúpeľňa s WC, spálne, plynové kúrenie gamatkami, rozvody vody, čiastočne aj elektriny, krb, okná, bezp. dvere, dodatočná izolácia proti zemnej vlhkosti, vybudovaný prístrešok, boli zrealizované pred cca 20-timi rokmi.

Vysoké podkrovie sedlovej strechy poskytuje možnosť vybudovania ďalšieho obytného priestoru o podlahovej ploche minimálne 70 m2.

Dom je napojený na všetky IS, nie je však zateplený a odporúča sa jeho čiastočná rekonštrukcia, aj keď je aktuálne riadne obývateľný.

Nakoľko dom nemá žiadnu záhradu, je vhodný hlavne pre záujemcov, ktorí síce túžia po rodinnom domčeku, nemajú však dostatok času alebo vzťah k záhradníčeniu.

Aj kúpu tohto domu je možné zrealizovať prostredníctvom sporenia alebo hypotekárneho úveru, v takom prípade vám viem byť  nápomocný pri komunikácii s hypotekárnym špecialistom.

Ak máte záujem o bližšie informácie alebo o obhliadku tejto nehnuteľnosti, zavolajte mi, alebo mi napíšte.

Videoprehliadka

Milan Šiška, RSc.

V oblasti realít pracujem už od roku 1998.

Som certifikovaný realitný maklér, konateľ a majiteľ realitnej kancelárie Vivatt Real so sídlom v Banskej Bystrici. Špecializujem sa na Banskú Bystricu a okolie, bežne však realizujem predaje nehnuteľností aj v iných regiónoch slovenska.

Práca realitného makléra si vyžaduje neustále vzdelávanie sa, sledovanie nových trendov doma aj v zahraničí a ich následnú aplikáciu do praxe s cieľom poskytnúť klientom čo najkvalitnejšie realitné služby.

Profesionálne fotografie, videoprehliadky, 3D sken, homestaging, písanie článkov, ponuka pomocou moderných technológií a sociálnych sietí, aukcie, to je len krátky súpis činností dnešného realitného makléra. Okrem toho musí byť realiťák aj dobrým psychológom, právnikom, finančným konzultantom, obchodným manažérom, reklamným mágom, architektom, stavbárom, záhradníkom, atd..

Ja som okrem toho aj manžel, otec a už aj starý otec.

Za každým predajom, či prenájmom nehnuteľnosti, sa skrýva niekoľko ľudských príbehov. A to je dôvod, prečo by nikto nemal tak dôležitý životný krok, akým predaj, kúpa či prenájom nehnuteľnosti bezpochyby je, podceňovať.

Na týchto stránkach nájdete okrem mojej ponuky nehnuteľností aj články a realitné tipy, pomocou ktorých máte možnosť získať hlbší pohľad do sveta realít. A až nastane čas, kedy sa budete rozhodovať o predaji, kúpe či prenájme, budete o pár dobrých krokov pred ostatnými.

Máte nejaké otázky? Neváhajte ma kontaktovať. Rád sa s Vami stretnem aj osobne nezáväzne pri dobrej káve.

Milan Š.


Milan Šiška, RSc.

Kontaktný formulár

Stiahnuť PDF